iHH国际健康人居设计节2025参评启动礼 | 孙少川:忠于设计,贯彻始终

孙少川围绕“忠于设计”这一核心理念展开了深入阐述,明确指出设计绝非是简单的表面功夫,而是一项环环相扣的系统工程。设计师不能仅满足于提出创意,更需对项目全程把控。为阐明观点,孙少川以实际展厅项目为例,详细介绍从空间规划、结构照明到材料选择等多方面因素,打造一个独特的空间。他尤为关注人体健康与生活细节,在设计中兼顾安全与舒适。强调设计要突破传统,满足客户多元需求。最后还指出,设计师肩负着为客户生命健康考量的重任,每个设计选择都应注重品质,致力于实现空间功能与美学、健康与人文的深度融合。
《忠于设计,贯彻始终》
01 设计师的本质与系统设计观

“忠于设计”,绝非空谈。在实际项目中,不少设计师虽有精妙创意,却无法将其贯穿始终,施工图、设备安装、材料选用等环节皆假手于人,这显然偏离了设计师的本质。设计师犹如医生,诊断病情后,怎能让他人代开药方?设计是一项系统工程,绝非仅靠几张效果图就能了事。
在我的实践中,空间内的结构、暖通、照明,乃至每一块材料的尺寸、与各界面的关系,皆由我统筹指导团队完成。
02 “对大于美”理念与健康空间营造
我们公司在设计上“对大于美” 的核心理念,与本次iHH国际健康人居设计节紧密相连。当下,装修材料中的甲醛与苯威胁着空间健康。作为设计师,我们应思考如何引入第三种材料,通过化学反应,将有害物质转化为水和空气,营造无毒空间。
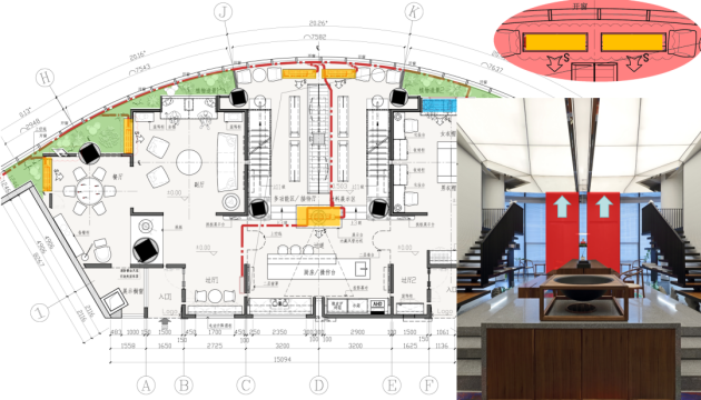
03 展厅项目实践:空间规划与文化融合
下面是我们做过的一个展厅项目,在这个项目中,面对扇形柱子与弧形玻璃幕墙构成的复杂空间,且梁底仅一米八十几,我们需巧妙规划。一方面,从中国建筑文化中汲取灵感,每一条线皆与材料规格、吊顶、灯光相关联,让不规则空间趋于方正。另一方面,在玻璃幕墙设计上,若早与欧大师门窗合作,便无需浪费异形空间。普通玻璃的热辐射致使人体需与玻璃保持一米五以上距离,我们通过模拟生活场景,将空间规划为方正区域与花园边角,以“别墅置于花园中”为理念,利用水分降温,实现功能与美学的融合。

04 结构与材料创新:打造高效独特空间
在结构设计环节,面对四五米高的空间,打造实用且特色的结构是关键。经反复研讨,我们决定设计夹层。这需要精准规划钢梁框架梁与次梁布局,钢梁框架梁是主要承重部分,类似建筑脊梁,我们依据受力分析精确计算其位置与尺寸,均匀分散重量,维持结构稳定。次梁紧密配合,细化支撑体系,增强坚固程度。选材时,我们选择了轻质、高强度且易加工的夹板。利用其柔韧性贴合复杂造型,与钢梁协作,打造出高效独特的空间结构。


材料铺贴方面,我们重视公共模数的运用。公共模数是标准化尺寸体系,能让材料无缝对接、高效组合。选墙面瓷砖时,我们挑符合模数尺寸的,减少切割损耗,提高利用率,降低成本,还能保证墙面平整美观。地面铺贴同理,依据空间规划地砖铺贴方式,利用模数让缝隙均匀,地面整齐。同时,我们注重不同材料间的衔接,像墙面与地面过渡处,通过巧妙设计与精准施工,实现自然融合,提升空间质感 ,让材料发挥最大价值。

05 健康关怀:空调设计与人性化细节
在空调设计上,我尤为关注人体健康。通过精心规划平面,将空调管道与设备融入空间,实现空调风不直接吹人。我们设计的空调风口,不仅获得国家专利,还解决了高空检修安全问题。在实际运行中,因锅底涂层问题导致风机盘管故障,我及时研究改进,并分享给同行,体现了对设计细节的执着。
考虑到冬天洗澡寒冷,研究碳化木板用于淋浴间墙面,解决发霉与冰冷问题,深入生活细节,践行人性化设计。



06 空间场景与软装:文化传承与简约高效
空间场景设计同样源自中国文化。例如在打造中式风格的餐厅时,我们将老住宅窗棂的雕花样式简化,融入到餐厅的隔断设计中,再把传统灶台的围边造型运用到餐边柜的设计上,同时借鉴古代建筑门面内推所形成的过渡空间概念,在餐厅入口处设置一个小型的端景台,既蕴含着深厚的风水文化,还实现了空间的合理退让,让空间更具层次感和文化底蕴。


在软装设计上,我始终秉持简约而高效的原则。在一个现代简约风的书房里,我们把一把具有独特几何造型的椅子,通过改造椅腿部分,嵌入隐藏式灯带,利用椅子特性设计灯具,避免了无关装饰的堆砌,让空间简洁而不失高雅,实用而富有艺术感。

07 人性化设计:关注生活细微之处
在设计过程中,我始终将人性化设计放在重要位置,力求深入生活细节,满足用户的实际需求。就拿卫生间的设计来说,冬天洗澡时,人们常常会面临寒冷以及墙面发霉的困扰。经过深入研究,我们将碳化木板应用于淋浴间墙面。碳化木板具有出色的防潮性能,能够有效解决因水汽导致的发霉问题,为用户营造一个干燥、卫生的沐浴环境。同时,相较于传统的玻璃、瓷砖或石材墙面,碳化木板的质感更为温暖,大大改善了冬天洗澡时那种冰冷的触感,让沐浴过程更加舒适惬意。

为了实现这一设计,我们公司专门设立了实验室,与众多材料专家共同探讨、反复试验,不断优化碳化木板的性能和安装方式。这不仅体现了我们对设计品质的执着追求,更彰显了人性化设计的理念——从用户的实际感受出发,用专业知识和创新精神,为用户解决生活中的痛点,让每一个空间都充满人文关怀,真正成为用户温馨舒适的港湾。
08 设计师的责任:守护客户生命健康
最后,我想强调,设计师肩负着重大责任,每一条线、每一个作品都应关乎客户生命健康。经济下行的当下,我们更应注重设计品质。希望大家在新的一年收获满满,谢谢大家!

about
iHH国际健康人居设计节 & 欧大师门窗

为健康而设计
DESIGN FOR HEALTHY
iHH国际健康人居设计节由广州设计周主办运营,国际WELL建筑研究院(简称IWBI)担任国际指导,并联合首席健康伙伴欧大师门窗共同推广,为健康而设计的高质量健康人居设计研究和推广行动。
从设计师的设计关注点到业主的居住需求为基点,从健康人居空间的核心要素空气、水、光、风、健康材料等,共同探索健康人居、健康环境在人居空间设计中的应用,国际健康人居设计节倡导健康生活在现代城市空间中的应用和发展,致力于打造健康人居行业生态圈,以健康价值为社会造益。
首席健康合作伙伴

欧大师门窗始于“3060”双碳战略背景,以隔热保温降噪为技术核心,以安全耐用为产品基础,产品涵盖门、窗、幕墙、阳光房、遮阳及智能模组,致力于为建筑及室内空间提供立面整体解决方案,创建健康人居,我们始终秉持“守护生活温度,贡献低碳世界”的使命,以高标准产品品质降低建筑能耗,以优质服务为用户打造健康舒适的生活体验。


